Vakantiewoning - Vrijstaande woning in Kampen
Overijssel • Noordwest Overijssel • Kampen
Bekijk alle 22 foto's
Vakantiewoning - Vrijstaande woning in Kampen - Overijssel
Vakantiewoning - Vrijstaande woning in Kampen - Overijssel
Meervilla 6 - Welkom bij Meervilla 6, een royale en sfeervolle vakantiewoning waar rust, ruimte en uitzicht samenkomen. Deze woning ademt het echte eilandgevoel pur sang. Grote raampartijen zorgen voor een overvloed aan daglicht en versterken het gevoel van vrijheid dat wonen op een eiland zo bijzonder maakt. De robuuste zijgevel en karakteristieke schoorsteen geven de woning een stoere uitstraling, waardoor u ook in de winter comfortabel kunt genieten terwijl buiten de storm over het eiland raast.
Locatie & omgeving
Meervilla 6 is gelegen op een unieke locatie met volop ruimte en zichtlijnen over het omliggende landschap. Hier ervaart u de stilte, natuur en het ultieme vakantiegevoel, met alle voorzieningen binnen handbereik. Een plek waar ontspanning en comfort naadloos samenkomen.
Algemene kenmerken
- Ruime en karaktervolle vakantiewoning
- Grote raampartijen voor maximale lichtinval
- Robuuste architectuur met schoorsteen
- Geschikt voor gezinnen en grotere gezelschappen
Indeling
Begane grond
De entree vormt een fraai visitekaartje met prachtige lichtinval en staat in open verbinding met de woonkamer, badkamer, het toilet en de bovenverdieping. De royale woonkamer is licht en ruim en biedt directe toegang tot het terras. De open keuken is luxueus uitgevoerd en voorzien van alle inbouwapparatuur en keukenaccessoires die u mag verwachten. Daarnaast beschikt de begane grond over een riante badkamer met inloopdouche, dubbele wastafel, vrijhangend toilet en fontein.
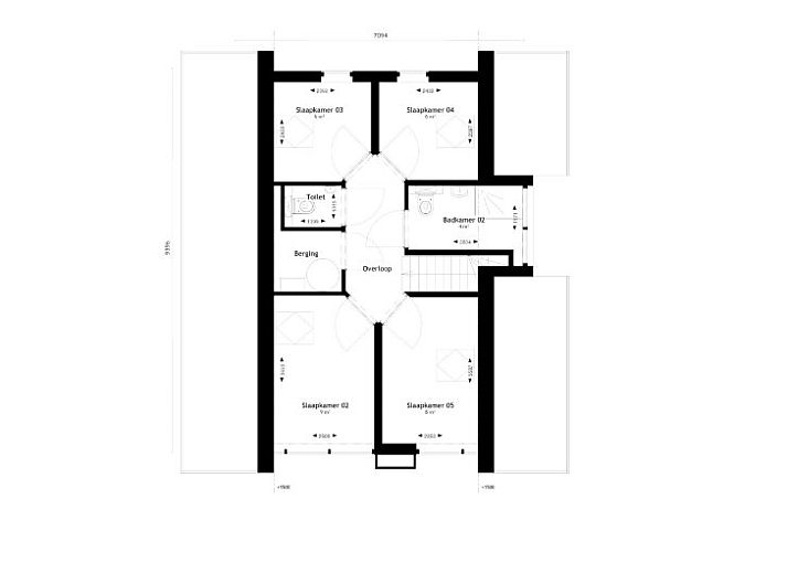
Eerste verdieping
Op de bovenverdieping bevinden zich maar liefst vier comfortabele slaapkamers, allen met veel daglicht dankzij de grote (dak)ramen. Tevens is hier een tweede badkamer aanwezig met douche, wastafel en toilet met fontein.
Buitenruimte
Vanuit de woonkamer bereikt u het terras, waar u kunt genieten van de buitenlucht, het uitzicht en de rust die deze locatie zo bijzonder maken. Een ideale plek om te ontspannen, ongeacht het seizoen.
Bijzonderheden
- Vier slaapkamers
- Twee badkamers
- Grote raampartijen en veel lichtinval
- Luxe keuken
- Karaktervolle architectuur met robuuste uitstraling
Kortom
Meervilla 6 is een ruime en sfeervolle vakantiewoning die uitblinkt in comfort, licht en beleving. Een perfecte keuze voor wie op zoek is naar het ultieme eilandgevoel.
Woningtype: Vrijstaande woning
Type bouw: Bestaande bouw
Woonoppervlakte: 134 m2
Perceeloppervlakte: 284 m2
Slaapkamers: 5
Badkamers: 2
Specificaties
Terras: Ja
Internet: Ja
Locatie & omgeving
Meervilla 6 is gelegen op een unieke locatie met volop ruimte en zichtlijnen over het omliggende landschap. Hier ervaart u de stilte, natuur en het ultieme vakantiegevoel, met alle voorzieningen binnen handbereik. Een plek waar ontspanning en comfort naadloos samenkomen.
Algemene kenmerken
- Ruime en karaktervolle vakantiewoning
- Grote raampartijen voor maximale lichtinval
- Robuuste architectuur met schoorsteen
- Geschikt voor gezinnen en grotere gezelschappen
Indeling
Begane grond
De entree vormt een fraai visitekaartje met prachtige lichtinval en staat in open verbinding met de woonkamer, badkamer, het toilet en de bovenverdieping. De royale woonkamer is licht en ruim en biedt directe toegang tot het terras. De open keuken is luxueus uitgevoerd en voorzien van alle inbouwapparatuur en keukenaccessoires die u mag verwachten. Daarnaast beschikt de begane grond over een riante badkamer met inloopdouche, dubbele wastafel, vrijhangend toilet en fontein.
Eerste verdieping
Op de bovenverdieping bevinden zich maar liefst vier comfortabele slaapkamers, allen met veel daglicht dankzij de grote (dak)ramen. Tevens is hier een tweede badkamer aanwezig met douche, wastafel en toilet met fontein.
Buitenruimte
Vanuit de woonkamer bereikt u het terras, waar u kunt genieten van de buitenlucht, het uitzicht en de rust die deze locatie zo bijzonder maken. Een ideale plek om te ontspannen, ongeacht het seizoen.
Bijzonderheden
- Vier slaapkamers
- Twee badkamers
- Grote raampartijen en veel lichtinval
- Luxe keuken
- Karaktervolle architectuur met robuuste uitstraling
Kortom
Meervilla 6 is een ruime en sfeervolle vakantiewoning die uitblinkt in comfort, licht en beleving. Een perfecte keuze voor wie op zoek is naar het ultieme eilandgevoel.
Woningtype: Vrijstaande woning
Type bouw: Bestaande bouw
Woonoppervlakte: 134 m2
Perceeloppervlakte: 284 m2
Slaapkamers: 5
Badkamers: 2
Specificaties
Terras: Ja
Internet: Ja
Voor meer informatie klik hier
Verblijf
- Vakantiewoning
- 5 slaapkamers
- Adres: Flevoweg 90 102, 8265 PL
Faciliteiten
- Er zijn nog geen faciliteiten bekend bij dit verblijf
Te koop
€ 525.000
Prijs
€ 525.000
Locatie
Niet helemaal het huisje waar u naar op zoek was?
Andere websitebezoekers die in Vrijstaande woning in Kampen geïntresseerd zijn, bekeken ook: